




Plot for sale
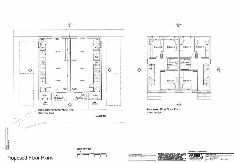
APPLICATION REFERENCE NUMBER: 10/24/1024 (Full plans and further details can be accessed via Blackburn with Darwen planning portal). This site provides a brilliant opportunity for a developer to create a pair of houses that would be highly sought after on the open market. Th...
Plot for sale
Description
APPLICATION REFERENCE NUMBER: 10/24/1024 (Full plans and further details can be accessed via Blackburn with Darwen planning portal). This site provides a brilliant opportunity for a developer to create a pair of houses that would be highly sought after on the open market. Th...
Contact Agent
Smart Picks — Professionals Relevant to This Land
Based on this property's key features, here are the specialists you may want to consult as part of your due diligence: land agents, rural solicitors and planning consultants.

Land Agents
Essential for navigating the land market, finding buyers, and securing the best price.

Rural Solicitors
Significant investment (£125K+) requires legal expertise for conveyancing, title checks, and transaction security.

Planning Consultants
Planning-sensitive site needs expert guidance for applications and development strategy.
Location
Leopold Road